
Construction Analysis
Subject Coordinator: Dr Alberto Pugnale
Senior Tutor: Dr Sofia Colabella
Studio Tutor: Zamaneh Khoshdel
Date: Semester 2, 2020
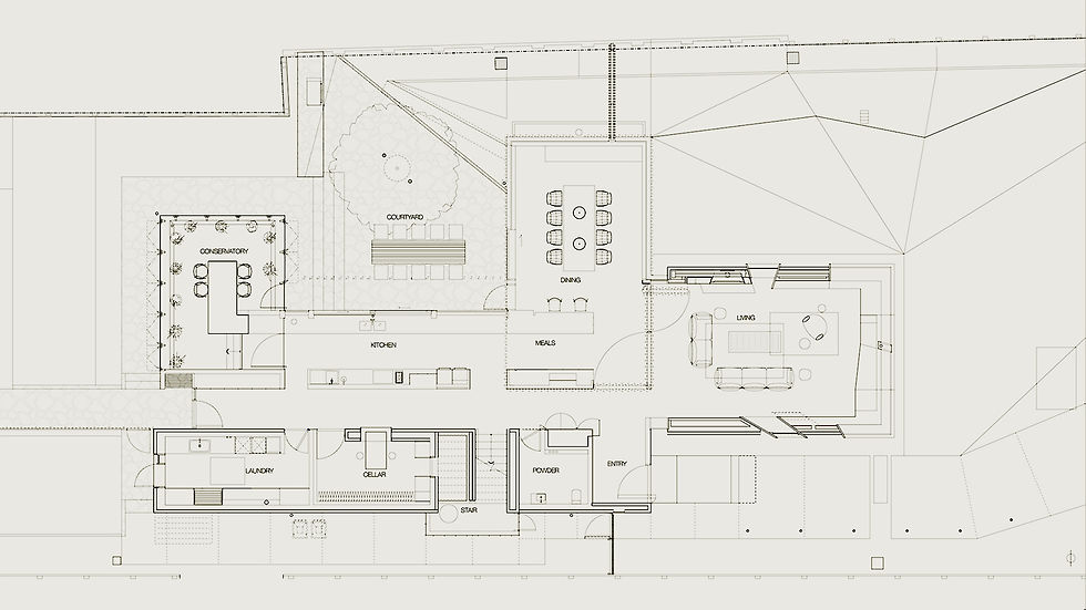
Lake Wendouree house, located at Ballarat, Victoria, is a private dwelling project designed by John Wardle Architect for a familay with a dog. My selected section covers the consavertory (Ground), part of the kitchen (Ground), and bedrooms (First Floor). The analyzing process firstly looking at the architectural and structural drawings, identify the building elements in my section. Then looked at the system of a house, trying to analyze their relationship to the design proposal.




By analyzing given architectural documents, the plan and section of the selected area has been re-drawn.


















Stage 4 First Floor Structure- timber
Stage 1 Excavation & Demolishment
Stage 2 Foundation
Stage 6 External Wall, Window, Door
Stage 3 Ground Floor Primary Structure- steel
Stage 7 Finishing, Jonery
Stage 5 Roof Structure
Stage 6 Internal Partitions





